SESC
Franca
São Paulo
Brasil
concurso 2013
Josep Ferrando + Haraldo Hauer
+ Alexandre Ruiz + Thais Saboia + Gustavo Vitores
22 / 32
Next >
< Previous
"Buscar la compatibilidad de la estética y la ética institucional, es decir, expresar los valores que subyacen a la entidad"
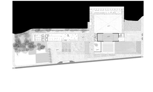
Comprender el entorno
La disgregación de volúmenes adoptada, para la creación del municipio de SESC Franca, se basa en el análisis del paisaje existente, tanto desde el punto de vista de la lectura de ocupación urbana en el entorno inmediato, como por el paisaje natural - de fuerte pendiente y amplias vistas - encontradas en el terreno propuesto.
La ciudad: una ocupación dispersa, de reciente pasado rural, de baja densidad y mayoritariamente residenciales en las cotas altas; e industriales y de servicios a lo largo de la avenida principal y la corriente. El paisaje natural: un terreno accidentado y con fuerte pendiente natural, acentuado por la transformación de tierras del equipamiento deportivo existente en las inmediaciones (el estadio "Lanchão"). La lectura final del área es un paisaje compuesto de pequeños fragmentos en las colinas y grandes bloques de servicios a lo largo de la avenida principal. El nuevo SESC debe ser un elemento organizador - un MARCO URBANO - implicado en el tejido urbano existente, además de un nuevo equipamiento que dialogue y renueve la IDENTIDAD a lo largo del paseo del río y las calles secundarias cercanas al terreno, creando un espacio fértil para la cultura y las artes.
El programa sectorizado por los condicionantes físicos
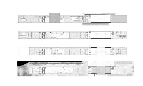
El reto fue distribuir un programa de grandes áreas planas en un terreno inclinado. Por lo tanto, la organización de las áreas se hace a través de la Gran plaza abierta que da acceso a la barra de actividades, por donde seguimos hacia los grandes volúmenes opacos y la plataforma elevada para actividades al aire libre.
Un viaje a través del SESC que se desarrolla con perspectivas diferentes (internas y externas), de carácter intencional dinámico, donde exterior (pendiente natural) e interior se armonizan descubriendo grandes pasarelas descubiertas. Un espacio de transitividad, que favorece la circulación de modo auto-orientado, relajado y agradable, garantizando la accesibilidad e integración de los sectores.
El disgregación genera la forma
El desafío fue PRESERVAR - TRANSFORMANDO y MINIMIZAR - APROVECHANDO. Es decir, preservar el paisaje natural y la lectura actual de la topografía original de Franca, trasformando el entorno positivamente con la inserción de nuevas funciones urbanas. Además de minimizar los impactos naturales y paisajísticos sobre el terreno, aprovechando las funciones internas necesarias para una obra de la complejidad de un SESC. La intención es regenerar el entorno y crear un espacio de carácter público, a través de un plaza abierta a la ciudad de Franca, que califica el vacío y configura el acceso principal al equipamiento. A lo largo de Av. DR. Ismael Alonso Alonso se propusieron pequeños ajustes: puentes estratégicos desde ambos lados de la carretera y carril bici junto al río, con el fin de incentivar el acceso al Complejo para peatones y ciclistas. La forma resultante - una Barra - deriva del paralelismo con la vía principal, formando una especie de eje de conexión con las vías laterales.
La disgregación adoptada, por tanto, le da LEGIBILIDAD al interior en la parte central y cerca del entorno urbano a través de HORIZONTALIDAD (Barra de actividades) siendo un marco horizontal que se adapta a la topografía, como contrapunto al fragmento de las casas del entorno. Para lograr estos objetivos, se optó por aproximar las áreas visualmente más permeables (translúcidas) a las cotas bajas del terreno. El proyecto crea OJOS (visibilidad: identificación elementos del entorno) hacia la calle en las cotas bajas a través de trasparencias y vacíos, al mismo tiempo que refuerza el carácter deportivo de las cotas altas (áreas descubiertas) propiciando vistas y coberturas espaciales reveladoras tanto interna como externamente al equipamiento. Por otro lado, los grandes equipamientos opacos - como el Gimnasio y la Caja Escénica del Cine-Teatro se encuentra cerca de la Rua Rio Grande do Sul, con el fin de minimizar el movimiento de tierras necesaria para su implantación, relegando las zonas de carga y descarga, y accesos de servicios.
+ info
Equipamiento
15.500m2
+ awards
> Finalist Prize
+ collaborators
Rodrigo Vinci Philippi + Felipe Zarpelon +
João Vitor de Paula Araújo
+ consultants
Eduardo Santos + Ricardo Dias
+ publications
arquitecturabeta.com
