Mercado
Roquetas
de Mar
concurso 2014
Gustavo Vitores
1 / 10
Next >
< Previous
El Mercado de Abastos en Roquetas de Mar...
...se sitúa en el límite de la ciudad tangente a la carretera de Alicún, actualmente en desuso pero siendo un futuro foco urbano importante en el eje conector entre la Estación de Autobuses, el Pabellón deportivo Infanta Cristina, la Plaza de Toros, el futuro parque de los Bajos.
El edificio del arquitecto almeriense Placido Langre Granade en 1976, se zonifica en dos áreas, el mercado bajo la gran cubierta y el volumen anexo de servicio. La disposición en planta de los antiguos puestos en el perímetro seguían una tipología tradicional de los mercados de la época como actividad que se desarrolla hacia el interior, opacos al exterior. La imponente cubierta de piezas de hormigón prefabricado de sección curva es el principal elemento singular del edificio por una razón estética, constructiva y funcional, jerarquiza el interior del mercado y se hace presente en la ciudad de forma icónica. La carpintería de semicírculos y rejas metálicos en los huecos del cerramiento le da singularidad a las fachadas, acompasando los arcos de forma convexa a los de la cubierta contrastando pesadez y ligereza.
La fachadas quedan conformadas de forma heterogénea por el programa interno del mercado en desuso y el entorno inmediato, con volúmenes discontinuos en la plaza Norieta y frente plano en los cerramientos Este y Oeste.
La dimensión del edificio, la opacidad de la cubierta y la reducida proporción de huecos en tres de las fachadas dificultan la entrada de luz natural en el interior del mercado.
Las intervenciones a lo largo del tiempo han provocado parásitas protuberancias volumétricas en el interior y exterior del mercado, cambiando la imagen del equipamiento, aunque se ha conservando el elemento singular principal (la cubierta), gran parte de las carpinterías, y la fachada que ya no responde a la situación existente.
Propuesta de proyecto
1_”Mantener el carácter" recuperando la esencia e identidad formal de la cubierta y la estructura como elementos singulares principales; reutilizando las carpinterías metálicas como elementos singulares secundarios; y reformar el volumen de servicios de almacén en la calle Dr. Osorio Martínez, accesos de rampas y escaleras, y la solera interior del mercado.
2_"Derribo" de elementos no singulares, como los volúmenes anexos en la fachada Oeste que parasitan el edificio, la fachada hacia la plaza Norieta, los cerramientos de la fachada Este y Oeste, y los tabiques interiores de reformas del edificio.
3_”Transparencia" y liberación en fachada, que permita la entrada de luz natural en su máxima superficie, y una nueva conexión de apertura entre el equipamiento y el espacio urbano.
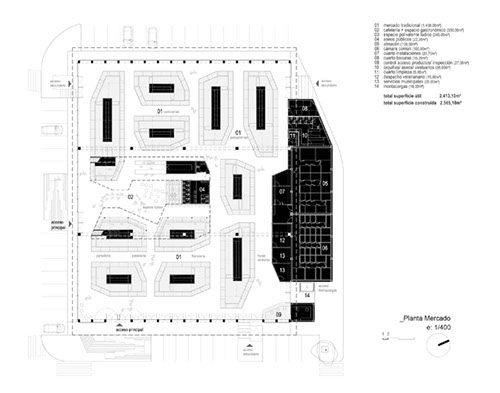
4_"Nueva configuración" de mercado: desarrollando el programa en "paquetes volumétricos o muebles" (puestos de mercado y espacio lúdico), como piezas de contraste y generación de diferentes espacios característicos, que se aíslan de la fachada y de la estructura existente para mantener la esencia espacial; "Alineación y dirección" de las parcelas siguiendo los ejes del edificio y de las ejes cardinales para generar chaflanes que permiten una mejora de la movilidad; "Flexibilidad" pudiendo utilizar el espacio lúdico y el espacio de mercado de forma independiente, disponer de espacios burbuja o de respiración en el acceso al edificio y el espacio lúdico, y modificar la configuración de los puestos de forma libre por el vendedor teniendo la posibilidad de aumentar los espacios libres para un evento; El espacio lúdico se convierte en "referencia espacial", con una planta primera de uso flexible, grada-escalera o mini auditorio, cafetería, gastro-bar, artesanía..., siendo el corazón del proyecto.
